SIGN UP LOGIN
Get in Touch

Get in Touch

Waylon Martin

640 Cepi DriveSuite 100
Chesterfield, MO 63005
Refine Search

513/515 W Smith Street, Spring Hill, KS 66083

call for price
  • 513/515 W Smith Street, Spring Hill, KS 66083 Main Photo

9 Total Photos [Click to View All]

Active
BEDS0 BATHS MLS#2578570
STATUSActive PROPERTY TYPEMulti Unit - Multiple SUBDIVISIONSpring Hill SCHOOLSpring Hill

Property Description

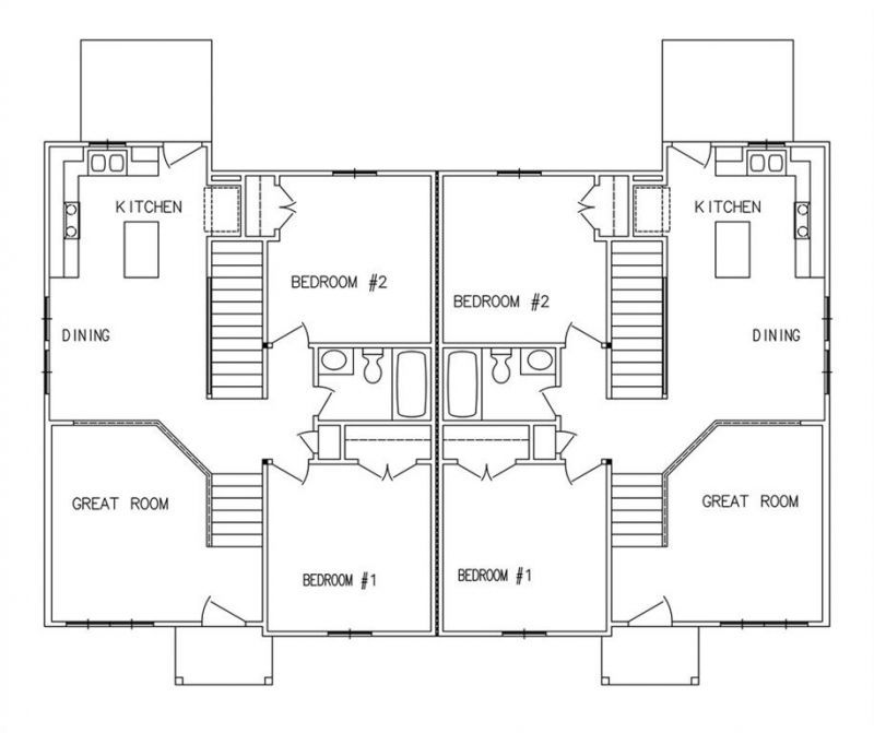
New Construction Full duplex Split plan. Open plan with LVP flooring and stainless appliance package. Unfinished walkout lower level is stubbed for additional bathroom.

513/515 W Smith Street | MLS# 2578570

This multi-family property located at 513/515 W Smith Street, Spring Hill, KS 66083 is currently listed for sale with an asking price of call for price. 513/515 W Smith Street is located within the Spring Hill school district. Search Spring Hill real estate on wmartin.trophypa.com today.

Property Features

Property Type: Multi Unit - Multiple
Basement: Yes
Heating: Natural Gas
Home Style: Duplex
Lot Size: 0.22 Acres
Roof Type: Composition
Stories: 2.0

Feature Descriptions

Days on Site: 199
Exterior: Frame
Flood Plain: No
Management: Other
Parking: Attached, Garage
Parking Notes: Attached, Garage
Sewer: Public Sewer
Unit: 2 Bedroom
Units: 2
Utilities: Ind Heat And Air, Ind Water Heaters, Separate Meters
Water: Public

Local Schools

High School: Spring Hill
Middle School: Spring Hill
Elementary School: Spring Hill
School District: Spring Hill

Listed By / Shown

Listed By

Agency Name: Keller Williams Realty Partners Inc.
Agency Phone: 913-906-5400

Shown By

Agent Name: Waylon Martin
Agent Phone: (417) 410-5964
Agency Title: Trophy Properties & Auction

IDX logo

Estimate Your Payment

Estimated Payment

$ 0.00 per month $0.00 Principal & Interest $0.00 Property Tax (data not provided by mls) $0.00 Homeowner's Insurance

Change Payment Information

%
years/fixed
yearly
yearly (est.)
(Payments are an estimate and may vary by lender)

Login to My Homefinder

Pixel